Opis nieruchomości
Oferujemy nowe, 2 pokojowe mieszkanie na parterze apartamentowcajako przykład jednego z wielu lokali mieszkalnych mieszczących się w budynku, który zostanie wzniesiony na nowo powstałym osiedlu "Apartamenty Parkowe".
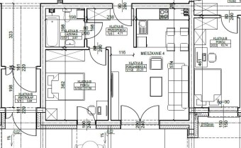
Lokal o łącznej pow. użytkowej wynoszącej 40,38 m2 składa się z następujących pomieszczeń:
- przedpokoju 4,75 m2,
- łazienki z WC 3,81 m2,
- pokój 11,55 m2,
- pokój + aneks kuchenny 20,27 m2.
- taras 18,94 m2,
- ogródek 18,94 m2.
* OGÓLNY OPIS INWESTYCJI *
CECHY CHARAKTERYSTYCZNE
- klimatyzacja w każdym lokalu.
- każde mieszkanie posiadać będzie balkon (lub w przypadku lokali położonych na parterze taras) wykończony takimi materiałami jak szkło, metal czy odporna na warunki atmosferyczne deska kompozytowa.
- w każdym segmencie bloków zainstalowana będzie winda renomowanej firmy OTIS.
- lokal zostanie oddany do rąk nowego właściciela w tzw. standardzie deweloperskim, który pozwala na częściową, indywidualną aranżację wnętrz – wedle uznania.
- ściany pomieszczeń zostaną wykończone tynkami wapienno - cementowymi.
- w każdym pomieszczeniu przewidziano po 3 punkty elektryczne; w kuchni dodatkowo doprowadzona zostanie tzw. siła.
- planowana inwestycja wzniesiona zostanie w umiarkowanie cichej i spokojnej okolicy.
- w pobliżu znajduje się Galeria Niwa, wielkopowierzchniowy sklep sieci Lidl, inne punkty handlowo usługowe oraz szkoły. Cały teren wokół nieruchomości zostanie ogrodzony i w pełni wyposażony w niezbędną infrastrukturę, m. in. drogę dojazdową, chodniki, lampy uliczne, itp.
- w pobliżu funkcjonują również przedszkola, szkoły a także ośrodek zdrowia oraz tereny sportowo – rekreacyjne, atrakcyjna architektura zieleni.
- osoby preferujące równowagę pomiędzy komfortem mieszkania, bliskością do centrum miasta i zielonym otoczeniem z pewnością znajdą tu coś dla siebie.
- CO oraz woda użytkowa zapewniona z miejskiej sieci grzewczej. Zastosowano tu ogrzewanie podłogowe.
- w garażu podziemnym
- w cenie 50 000 zł z komórką lokatorską,
- w cenie 45 000 zł bez komórki lokatorskiej,
- na parkingu przed budynkiem, za kwotę 30 000 zł.
PRZEWIDYWANY CZAS ZAKOŃCZENIA PRAC BUDOWLANYCH
Zakończenie prac, w ramach których wzniesiony zostanie budynek panuje się na IV kwartał 2024 r.
DOSTĘPNE WARIANTY LOKALI MIESZKALNYCH
W budynku dostępnych będzie 32 lokali mieszkalnych. Kupujący będą mogli nabyć mieszkania jedno, dwu lub trzypokojowe o powierzchniach od ok. 28 m2 do 68 m2.
W dołączonych do oferty zdjęciach pokazano przykładowe rozkłady pomieszczeń, dla różnych wariantów mieszkań.
W celu uzyskania dalszych informacji lub dokonania rezerwacji apartamentu zapraszamy do naszego biura.
Nota prawna
Opis oferty zawarty na stronie internetowej sporządzany jest na podstawie oględzin nieruchomości oraz informacji uzyskanych od właściciela, może podlegać aktualizacji i nie stanowi oferty określonej w art. 66 i następnych K.C.Szczegóły



