Opis nieruchomości
WYKOŃCZ WEDŁUG WŁASNYCH PREFERENCJI!Dom na sprzedaż w trakcie budowy
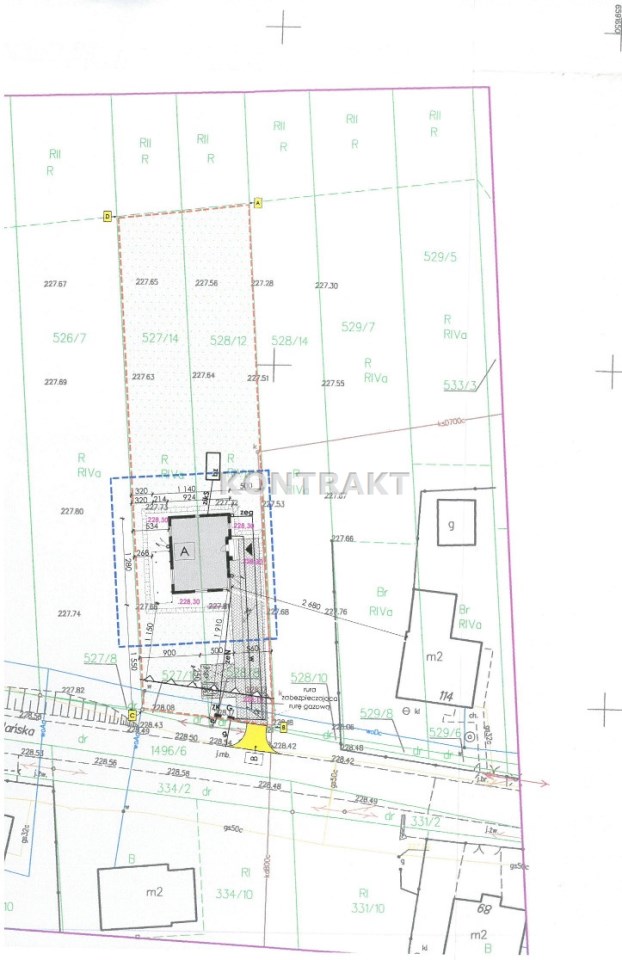
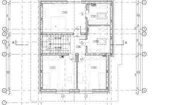
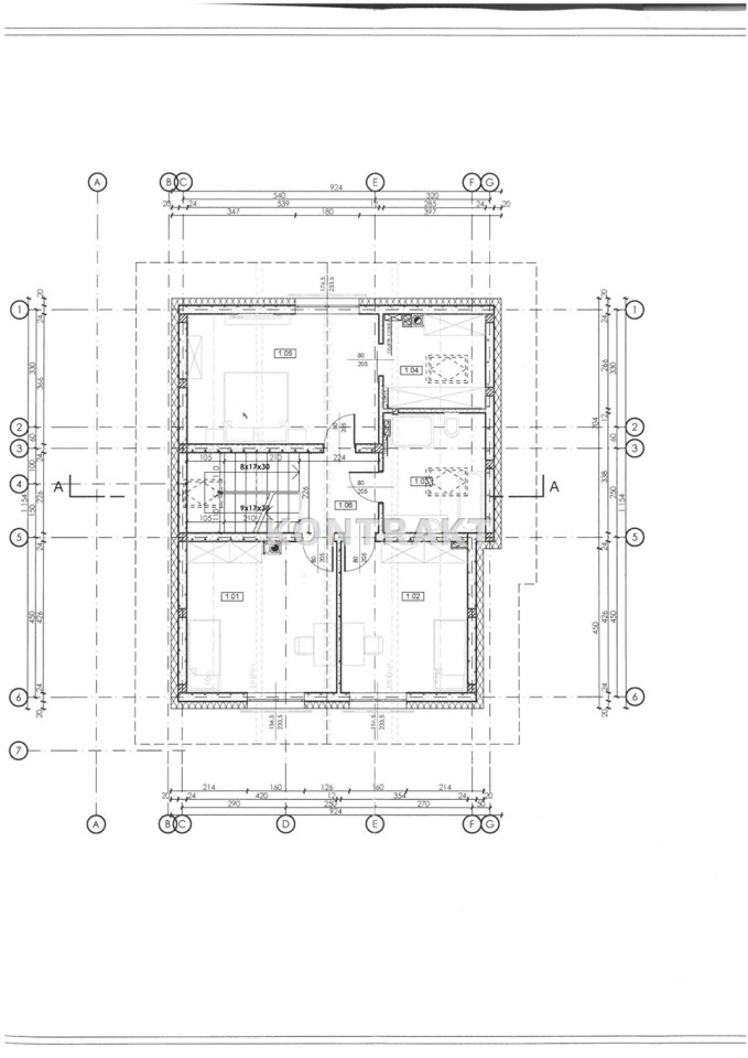
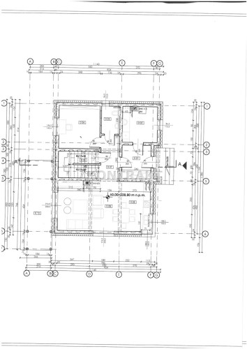
Oferujemy do sprzedaży wolnostojący budynek mieszkalny o pow. użytkowej wynoszącej 148,30m2 w miejscowości Gromiec (gm. Libiąż). Jest to parterowy dom z poddaszem użytkowym. Nieruchomość jest zlokalizowana na dwóch przyległych, podłużnych działkach o łącznej powierzchni 0,6921 ha.
CHARAKTERYSTYKA:
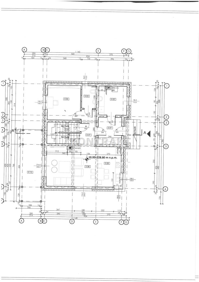
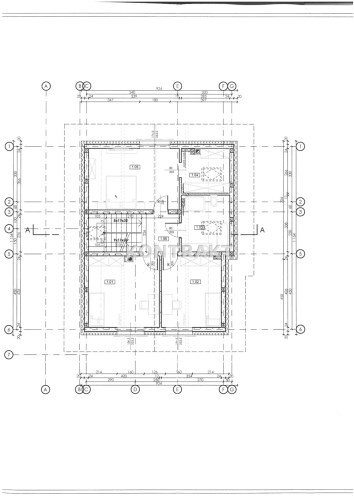
- w skład pomieszczeń parteru wchodzą: dwa pokoje, kuchnia, łazienka oraz dwa pomieszczenia gospodarcze, na poddaszu znajdują się trzy pokoje, garderoba oraz łazienka.
- budynek jest w trakcie budowy, wykonano większość najważniejszych prac budowlanych. Stan na dzień dzisiejszy to stan surowy zamknięty (wybudowany z pustaka Termobet) z wewnętrznymi tynkami.
- zostały zamontowane okna PCV (matowy antracyt) z przesuwnym oknem tarasowym wraz z roletami antywłamaniowymi, dach został pokryty dachówką ceramiczną (Robben Antracyt matowy), kominy wykończone cegłą klinkierową,
- w budynku przewidziano ogrzewanie podłogowe.
- instalacja elektryczna - jest wykonana, a budynek jest podłączony do sieci
- gaz - skrzynka gazowa znajduje się na posesji, a przyłączenie do rury biegnącej wzdłuż drogi wymaga doprowadzenia instalacji na odcinku maksymalnie kilkunastu metrów.
- kanalizacja – przewidziana jest przydomowa oczyszczalnia ścieków,
- nowi właściciele mogą wykończyć wnętrza według własnych preferencji,
- działka, na której wybudowano budynek mieszkalny jest nieogrodzona, część działki za domem to teren rolny.
Parter:
- wiatrołap 7 m2,
- pom. gospodarcze 8,8 m2,
- łazienka 3,7 m2,
- pokój 12,7 m2,
- pom. gospodarcze 2,5 m2,
- salon 22,0 m2,
- kuchnia 11,5 m2.
- sypialnia 14,7 m2,
- sypialnia 11,2 m2,
- łazienka 8,3 m2,
- garderoba 7,4 m2,
- sypialnia 17,0 m2.
Dom położony jest w niewielkiej miejscowości Gromiec w gminie Libiąż. Okolica jest spokojna i cicha. Otoczenie domu stanowi zabudowa jednorodzinna.
Zapraszamy do kontaktu!
Nota prawna
Opis oferty zawarty na stronie internetowej sporządzany jest na podstawie oględzin nieruchomości oraz informacji uzyskanych od właściciela, może podlegać aktualizacji i nie stanowi oferty określonej w art. 66 i następnych K.C.Szczegóły



