Opis nieruchomości
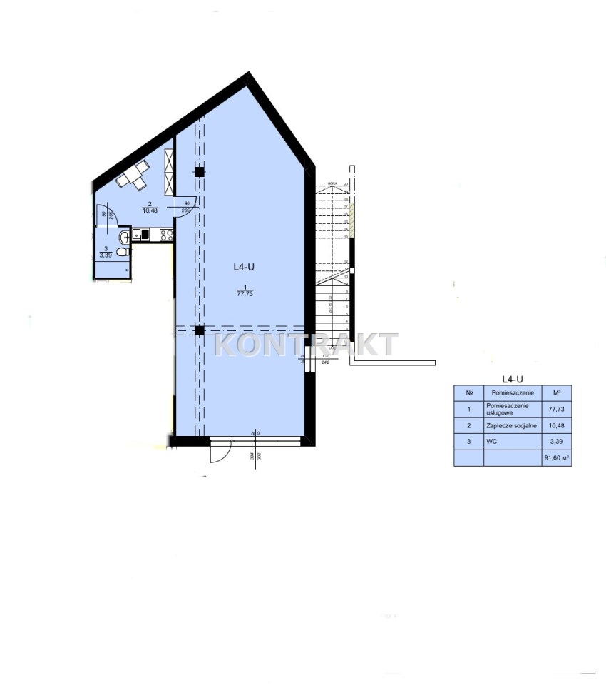
Ten lokal może być strzałem w dziesiątkę!Do wynajęcia nowoczesny lokal handlowo-usługowy o powierzchni 91,60 m², położony na parterze świeżo oddanego budynku mieszkalno-usługowego przy ul. Królowej Jadwigi w Oświęcimiu.
Lokal jest w stanie deweloperskim, co daje możliwość wykończenia i aranżacji dokładnie według potrzeb Najemcy.
Układ pomieszczeń:
- przestronne pomieszczenie główne – 77,73 m² (możliwość dowolnego podziału),
- zaplecze socjalne – 10,48 m²,
- toaleta – 3,39 m².
- duża, przeszklona witryna – świetna ekspozycja i naturalne światło,
- bardzo dobra lokalizacja – lokal położony u zbiegu ulic, zapewnia widoczność i łatwy dojazd,
- wysokość 330 cm – przestrzeń daje duże możliwości aranżacyjne,
- indywidualne liczniki mediów,
- drzwi antywłamaniowe,
- aluminiowa stolarka okienna,
- instalacja trójfazowa,
- wentylacja mechaniczna,
- ogrzewanie podłogowe,
- ciepła woda i ogrzewanie pochodzą z kotłowni w budynku.
Zapraszamy do kontaktu i umówienia prezentacji!
Nota prawna
Opis oferty zawarty na stronie internetowej sporządzany jest na podstawie oględzin nieruchomości oraz informacji uzyskanych od właściciela, może podlegać aktualizacji i nie stanowi oferty określonej w art. 66 i następnych K.C.Szczegóły



