Opis nieruchomości
OŚWIĘCIM CENTRUM | DO WYNAJĘCIA DUŻY LOKAL O POW. 116,8 m2
Lokal położony jest na parterze w kamienicy przy ulicy Mayzla 1 w sąsiedztwie Rynku Głównego w Oświęcimiu. Kamienica po kapitalnym remoncie, na tym etapie możliwość indywidualnej aranżacji wnętrza pod zapotrzebowanie przyszłego Najemcy.
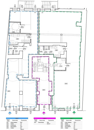
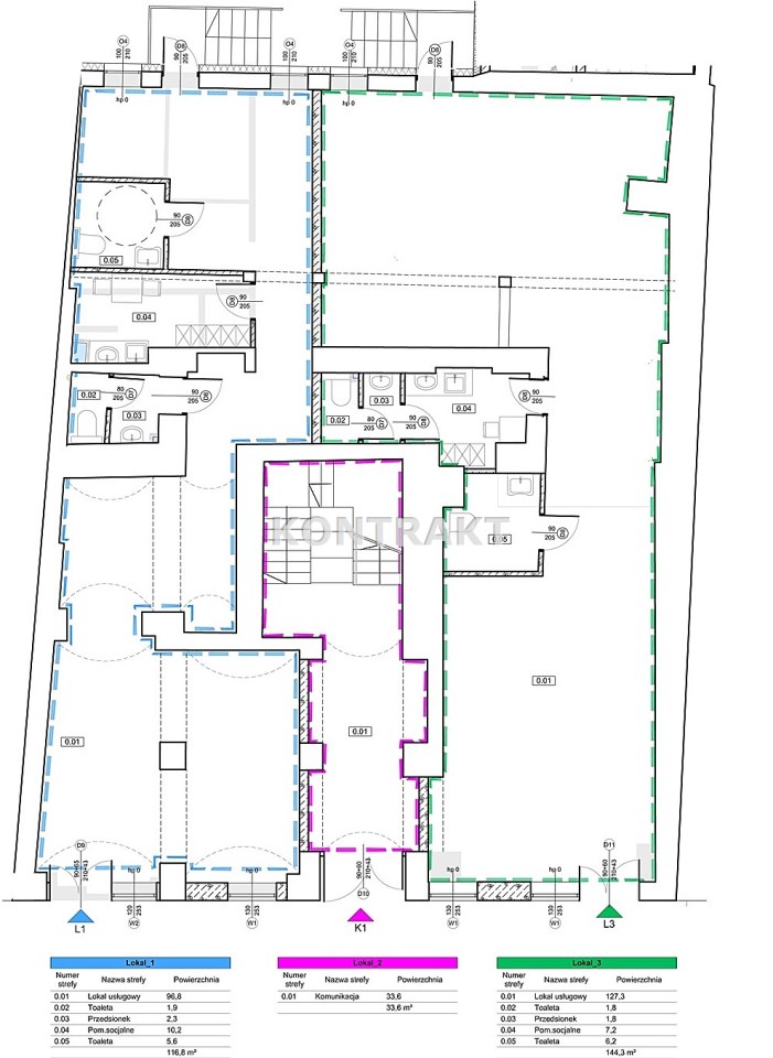
Na załączonym rzucie - lokal nr 1 - kolor niebieski
Lokal jest świetnie zlokalizowany w zabytkowej części miasta. W najbliższym sąsiedztwie znajduje się Zamek, Centrum Żydowskie w Oświęcimiu i Synagoga ( więcej informacji: http://ajcf.pl/muzeum/ ), Kościół Parafialny. Od strony ulicy Berka Joselewicza znajduje się nowo wybudowany hotel Hampton by Hilton.
Ulica Mayzla jest zaadaptowana na deptak z ogródkami gastronomicznymi.
Charakterystyka lokalu:
- witryny i wejście od ulicy Mayzla, wejście od ulicy Berka Joselewicza;
- powierzchnia użytkowa 116,8 m2;
- możliwość indywidualnej adaptacji lokalu;
- nowe instalacje: elektryczna, wodno - kanalizacyjna, centralne ogrzewanie miejskie;
- witryny i drzwi wejściowe klasy P4;
- prywatna część parkingowa od ulicy Berka Joselewicza oraz duża ilość miejsc parkingowych w strefie Rynku Głównego;
Koszty najmu:
Do czynszu najmu należy doliczyć 23% VAT oraz koszty centralnego ogrzewania, energii elektrycznej, wody - wszystkie media opomiarowane oraz wywozu nieczystości (indywidualna umowa).
Przy podpisania umowy najmu pobierana będzie kaucja zabezpieczająca w wysokości jednomiesięcznego czynszu najmu.
Do podanej ceny należy doliczyć koszt usługi pośrednictwa
Nota prawna
Opis oferty zawarty na stronie internetowej sporządzany jest na podstawie oględzin nieruchomości oraz informacji uzyskanych od właściciela, może podlegać aktualizacji i nie stanowi oferty określonej w art. 66 i następnych K.C.Szczegóły



