Opis nieruchomości
Zapraszamy do zapoznania się z nową inwestycją, która powstanie przy ul. Cyprysowej w Oświęcimiu . Obejmie ona budowę jednoklatkowego, wielorodzinnego, pięciopiętrowego budynku mieszkalnego.Garaż podziemny zlokalizowany jest pod bryłą budynku i pełni funkcję bezpiecznego miejsca do parkowania samochodów osobowych. Wjazd do garażu odbywa się poprzez rampę zjazdową wyposażoną w bramę automatyczną. Pozostałe piętra zajmą lokale mieszkalne. Dodatkowo przed budynkiem, dla mieszkańców przewidziano kilka miejsc parkingowych.
Teren inwestycji został starannie zaprojektowany, aby zapewnić mieszkańcom komfortowe warunki do wypoczynku i rekreacji. Dla dzieci przewidziano nowoczesny plac zabaw a dla osób szukających wytchnienia postawione zostaną komfortowe ławki.
OGÓLNY OPIS INWESTYCJI
W ramach inwestycji dostępne będą mieszkania (od dwóch do czterech pokoi) o powierzchni użytkowej od ok. 30 m2 do 50 m2.
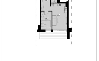
POMIESZCZENIA TEJ NIERUCHOMOŚCI:
- pokój z aneksem kuchennym 18,00 m2,
- pokój 8,53 m2
- łazienka z WC 5,08 m2,
- przedpokój 9,17 m2,
- balkon 8,60 m2,
CECHY CHARAKTERYSTYCZNE
- każde mieszkanie posiadać będzie balkon, wykończony takimi materiałami jak szkło, metal czy odporna na warunki atmosferyczne deska kompozytowa,
- lokal zostanie oddany do rąk nowego właściciela w tzw. standardzie deweloperskim, który pozwala na częściową, indywidualną aranżację wnętrz – wedle uznania,
- ściany pomieszczeń lokalu zostaną wykończone tynkami gipsowymi, Instalacja ogrzewania z węzła cieplnego, ogrzewanie podłogowe, na korytarzach zamontowane podzielniki ciepła przydzielone do każdego mieszkania rozliczanie ogrzewania i ciepłej wody,
- podstawowym materiałem budowlanym jest cegła ceramiczna Porotherm.
- blok wyposażony zostanie w windę,
- teren wokół nieruchomości zostanie ogrodzony i w pełni wyposażony w niezbędną infrastrukturę, m. in. drogę dojazdową oraz chodniki dla pieszych,
- bezpośrednie sąsiedztwo nieruchomości będzie stanowić zabudowa wielorodzinna, otoczenie można określić jako umiarkowanie ciche,
Cena nie zawiera miejsca postojowego.
Miejsce postojowe w garażu w cenie 40 000,00 zł lub miejsce parkingowe przed budynkiem za kwotę 30 000 zł.
Termin zakończenia inwestycji
30 grudnia roku 2026 r.
Zapraszamy do wcześniejszej rezerwacji. Więcej szczegółów i informacji uzyskasz w naszej placówce.
Nota prawna
Opis oferty zawarty na stronie internetowej sporządzany jest na podstawie oględzin nieruchomości oraz informacji uzyskanych od właściciela, może podlegać aktualizacji i nie stanowi oferty określonej w art. 66 i następnych K.C.Szczegóły



