Oświęcim, Błonie

Mieszkanie na sprzedaż

3 pokoje 1 piętro 46,25 m2 8 700,00 zł/m2

402 375 zł

nowa oferta
Mariusz Stokłosa

Właściciel

Opis nieruchomości

"APARTAMENTY NIDECKIEGO" w Oświęcimiu

Zapraszamy do zapoznania się z nową inwestycją, która powstanie przy ul. Andrzeja Nideckiego w Oświęcimiu na osiedlu Błonie. Obejmie ona budowę jednoklatkowego, wielorodzinnego, pięciopiętrowego budynku mieszkalnego.

Na najniższej kondygnacji, tj. parterze znajdzie się wielostanowiskowy garaż. Pozostałe piętra zajmą lokale mieszkalne. Dodatkowo przed budynkiem, dla mieszkańców przewidziano kilka miejsc parkingowych.

Teren inwestycji został starannie zaprojektowany, aby zapewnić mieszkańcom komfortowe warunki do wypoczynku i rekreacji. Dla dzieci przewidziano nowoczesny plac zabaw a dla osób szukających wytchnienia postawione zostaną komfortowe ławki. Pasjonaci jednośladów będą mogli bezpiecznie przechowywać swoje pojazdy w specjalnie zaprojektowanej rowerowni.


OGÓLNY OPIS INWESTYCJI

W ramach inwestycji dostępne będą mieszkania (od dwóch do czterech pokoi) o powierzchni użytkowej od ok. 38 m2 do 79 m2.

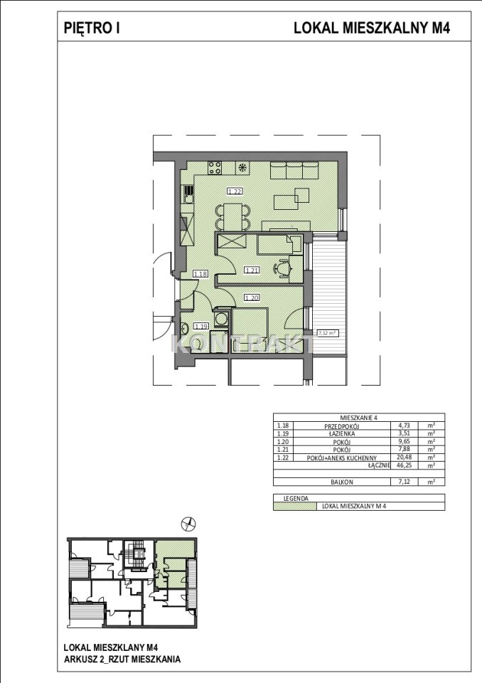
POMIESZCZENIA TEJ NIERUCHOMOŚCI:
  • pokój z aneksem kuchennym 20,48 m2,
  • pokój 9,65 m² 
  • pokój 7,88 m2,
  • łazienka z WC 3,51 m2,
  • przedpokój 4,73 m2,
  • balkon 7,12 m2,
CECHY CHARAKTERYSTYCZNE
  • każde mieszkanie posiadać będzie balkon, wykończony takimi materiałami jak szkło, metal czy odporna na warunki atmosferyczne deska kompozytowa,
  • lokal zostanie oddany do rąk nowego właściciela w tzw. standardzie deweloperskim, który pozwala na częściową, indywidualną aranżację wnętrz – wedle uznania,
  • ściany pomieszczeń lokalu zostaną wykończone tynkami gipsowymi,
  • lokal będzie ogrzewany centralnie, z kotłowni gazowej,
  • podstawowym materiałem budowlanym jest cegła ceramiczna Porotherm. 
  • blok wyposażony zostanie w windę,
  • teren wokół nieruchomości zostanie ogrodzony i w pełni wyposażony w niezbędną infrastrukturę, m. in. drogę dojazdową oraz chodniki dla pieszych,
  • bezpośrednie sąsiedztwo nieruchomości będzie stanowić zabudowa wielorodzinna, otoczenie można określić jako umiarkowanie ciche,
  • w pobliżu znajdują się liczne punkty handlowo usługowe w tym sklep sieci Netto. Nieco dalej znajduje się Galeria Niwa a także przedszkole.
Uwaga:
Do lokalu mieszkalnego można kupić miejsce postojowe w garażu w cenie 45 000,00 zł lub miejsce parkingowe przed budynkiem za kwotę 30 000 zł.

Termin rozpoczęcia budowy styczeń 2025r.
Termin zakończenia inwestycji  I kwartał 2026r.

Zapraszamy do wcześniejszej rezerwacji. Więcej szczegółów i informacji uzyskasz w naszej placówce.

Nota prawna

Opis oferty zawarty na stronie internetowej sporządzany jest na podstawie oględzin nieruchomości oraz informacji uzyskanych od właściciela, może podlegać aktualizacji i nie stanowi oferty określonej w art. 66 i następnych K.C.

Szczegóły

Symbol oferty GBI-MS-2146
Powierzchnia 46,25 m²
Powierzchnia użytkowa 46,25 m²
Powierzchnia balkonów/tarasów 7,12 m²
Liczba pokoi 3
Piętro 1
Rodzaj budynku apartamentowiec
Standard
Liczba pięter w budynku 5
Stan lokalu Do wykończenia
Instalacje nowe
Balkon jest
Liczba balkonów 1
Rok budowy 2025
Dojazd asfalt
Ogrzewanie podłogowe
Winda tak

Podobne oferty

Mieszkanie na sprzedaż - Oświęcim, Brzezinka
mieszkanie na sprzedaż - Oświęcim, Brzezinka

GBI-MS-2160

Oświęcim, Brzezinka
mieszkanie na sprzedaż

2 pokoje 41,41 m²

347 844
8 400,00 zł/m2
nowa oferta
Dodaj
do notatnika
Mieszkanie na sprzedaż - Oświęcim
mieszkanie na sprzedaż - Oświęcim

GBI-MS-2157

Oświęcim
mieszkanie na sprzedaż

2 pokoje 72,50 m²

399 000
5 503,45 zł/m2
nowa oferta
Dodaj
do notatnika
Mieszkanie na sprzedaż - Oświęcim
mieszkanie na sprzedaż - Oświęcim

GBI-MS-2155

Oświęcim
mieszkanie na sprzedaż

2 pokoje 47,30 m²

473 000
10 000,00 zł/m2
nowa oferta
Dodaj
do notatnika
Mieszkanie na sprzedaż - Oświęcim, Brzezinka
mieszkanie na sprzedaż - Oświęcim, Brzezinka

GBI-MS-2150

Oświęcim, Brzezinka
mieszkanie na sprzedaż

3 pokoje 50,03 m²

425 255
8 500,00 zł/m2
nowa oferta
Dodaj
do notatnika
PLN
PLN
PLN
PLN
PLN
PLN
PLN
%
PLN
PLN
PLN

PLN

Uwaga: mogą wystąpić dodatkowe opłaty za założenie księgi wieczystej oraz ustanowienie hipoteki.

Dane:

PLN
%

Wynik:

PLN
pierwsza rata
ostatnia rata

Napisz do nas

Proszę wypełnić to pole
Proszę wypełnić to pole
Proszę wypełnić to pole
Proszę wypełnić to pole
Trwa wysyłanie...

Ta strona wykorzystuje pliki cookies w celach statystycznych oraz w celu dostosowania naszych serwisów do indywidualnych potrzeb klientów. Zmiany ustawień dotyczących plików cookie można dokonać w dowolnej chwili modyfikując ustawienia przeglądarki. Korzystanie z tej strony bez zmian ustawień dotyczących cookies oznacza, że będą one zapisane w pamięci urządzenia.

rozumiem