Opis nieruchomości
"APARTAMENTY NIDECKIEGO" w OświęcimiuZapraszamy do zapoznania się z nową inwestycją, która powstanie przy ul. Andrzeja Nideckiego w Oświęcimiu na osiedlu Błonie. Obejmie ona budowę jednoklatkowego, wielorodzinnego, pięciopiętrowego budynku mieszkalnego.
Na najniższej kondygnacji, tj. parterze znajdzie się wielostanowiskowy garaż. Pozostałe piętra zajmą lokale mieszkalne. Dodatkowo przed budynkiem, dla mieszkańców przewidziano kilka miejsc parkingowych.
Teren inwestycji został starannie zaprojektowany, aby zapewnić mieszkańcom komfortowe warunki do wypoczynku i rekreacji. Dla dzieci przewidziano nowoczesny plac zabaw a dla osób szukających wytchnienia postawione zostaną komfortowe ławki. Pasjonaci jednośladów będą mogli bezpiecznie przechowywać swoje pojazdy w specjalnie zaprojektowanej rowerowni.
OGÓLNY OPIS INWESTYCJI
W ramach inwestycji dostępne będą mieszkania (od dwóch do czterech pokoi) o powierzchni użytkowej od ok. 38 m2 do 79 m2.
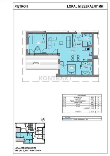
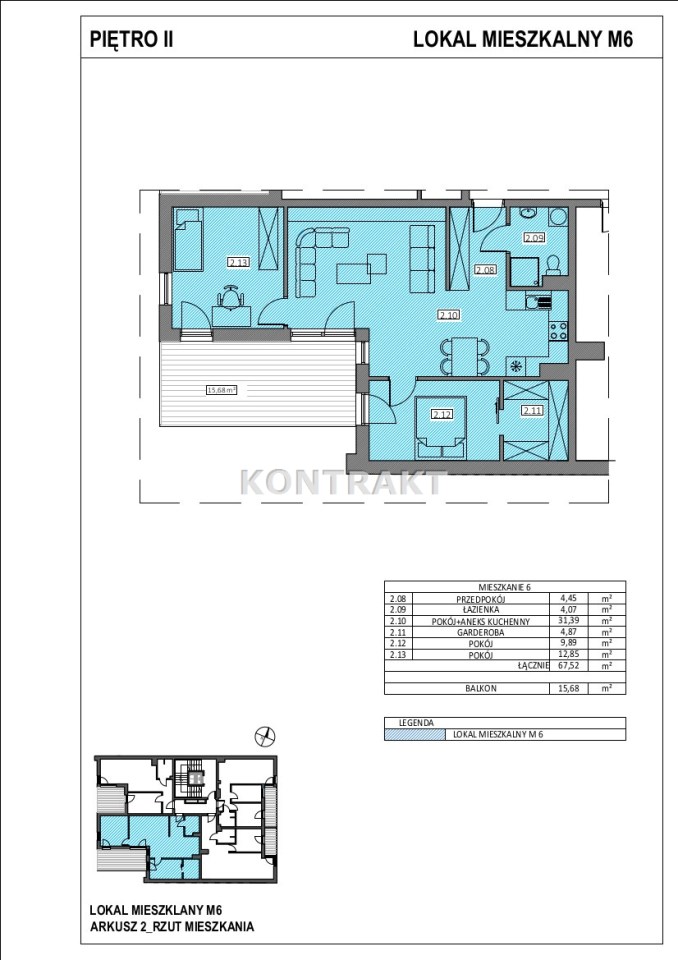
POMIESZCZENIA TEJ NIERUCHOMOŚCI:
- pokój z aneksem kuchennym 31,39 m2,
- pokój 9,89 m2,
- pokój 12,85 m2
- łazienka z WC 4,07 m2,
- przedpokój 4,45 m2,
- balkon/taras 15,68 m2.
- każde mieszkanie posiadać będzie balkon, wykończony takimi materiałami jak metal czy płytka tarasowa,
- lokal zostanie oddany do rąk nowego właściciela w tzw. standardzie deweloperskim, który pozwala na częściową, indywidualną aranżację wnętrz – wedle uznania,
- ściany pomieszczeń lokalu zostaną wykończone tynkami gipsowymi,
- lokal będzie ogrzewany centralnie, z kotłowni gazowej,
- podstawowym materiałem budowlanym jest cegła ceramiczna Porotherm.
- blok wyposażony zostanie w windę,
- teren wokół nieruchomości zostanie ogrodzony i w pełni wyposażony w niezbędną infrastrukturę, m. in. drogę dojazdową oraz chodniki dla pieszych,
- bezpośrednie sąsiedztwo nieruchomości będzie stanowić zabudowa wielorodzinna, otoczenie można określić jako umiarkowanie ciche,
- w pobliżu znajdują się liczne punkty handlowo usługowe w tym sklep sieci Netto. Nieco dalej znajduje się Galeria Niwa a także przedszkole.
Do lokalu mieszkalnego można kupić miejsce postojowe w garażu w cenie 45 000,00 zł lub miejsce parkingowe przed budynkiem za kwotę 30 000 zł.
Termin rozpoczęcia budowy styczeń 2025r.
Termin zakończenia budowy II kwartał 2026r.
Termin przeniesienia własności III kwartał 2026r.
Zapraszamy do wcześniejszej rezerwacji. Więcej szczegółów i informacji uzyskasz w naszej placówce.
Nota prawna
Opis oferty zawarty na stronie internetowej sporządzany jest na podstawie oględzin nieruchomości oraz informacji uzyskanych od właściciela, może podlegać aktualizacji i nie stanowi oferty określonej w art. 66 i następnych K.C.Szczegóły



